Como arquitecto, he diseñado diversos espacios, incluyendo viviendas, escuelas, oficinas y edificios comerciales. Mi trabajo combina creatividad y practicidad, centrándose en la resolución de problemas del mundo real y en mejorar la experiencia del usuario. Tengo experiencia en todas las fases de diseño, utilizando herramientas como SketchUp para modelado 3D y AutoCAD. Además, preparo informes de patología y creo diseños de oficinas.
He trabajado para estudios de arquitectura e ingeniería civil consagrados en Buenos Aires y Barcelona, y también he realizado algunos trabajos como arquitecto independiente. Algunos de los clientes con los que he trabajado son el Gobierno de Catalunya (GISA, Incasol), el diseñador de interiores Lázaro Rosa-Violan, la empresa multinacional de acero ítalo-argentina Techint, entre otros.
VOLVER AL MENU PRINCIPAL
HAGA CLIC EN LAS CATEGORÍAS PARA VER LOS TRABAJOS:
Trabajos para el arquitecto CARLOS NICOLAU PARES, Barcelona. Arquitectura comercial (OYSHO), competición para hotel de 5 estrellas.
Trabajos para SEGUI Arquitectura, Barcelona. Viviendas públicas y escuelas públicas, detalles de construcción, diseño urbano, renders en 3D.
Trabajos para RAC-JMV, ingenieros civiles, Buenos Aires. Elaboración de detalles constructivos de estructuras de acero y hormigón.
Trabajos para C&ARQ Estudio Arquitectónico, Buenos Aires. Espacios de oficina y edificios de vivienda colectiva privada, detalles de construcción.
Trabajos como Arquitecto Independiente, Buenos Aires. Arquitectura comercial, viviendas privadas.
PARA ESTUDIO SEGUI ARQUITECTURA
Barcelona, España.
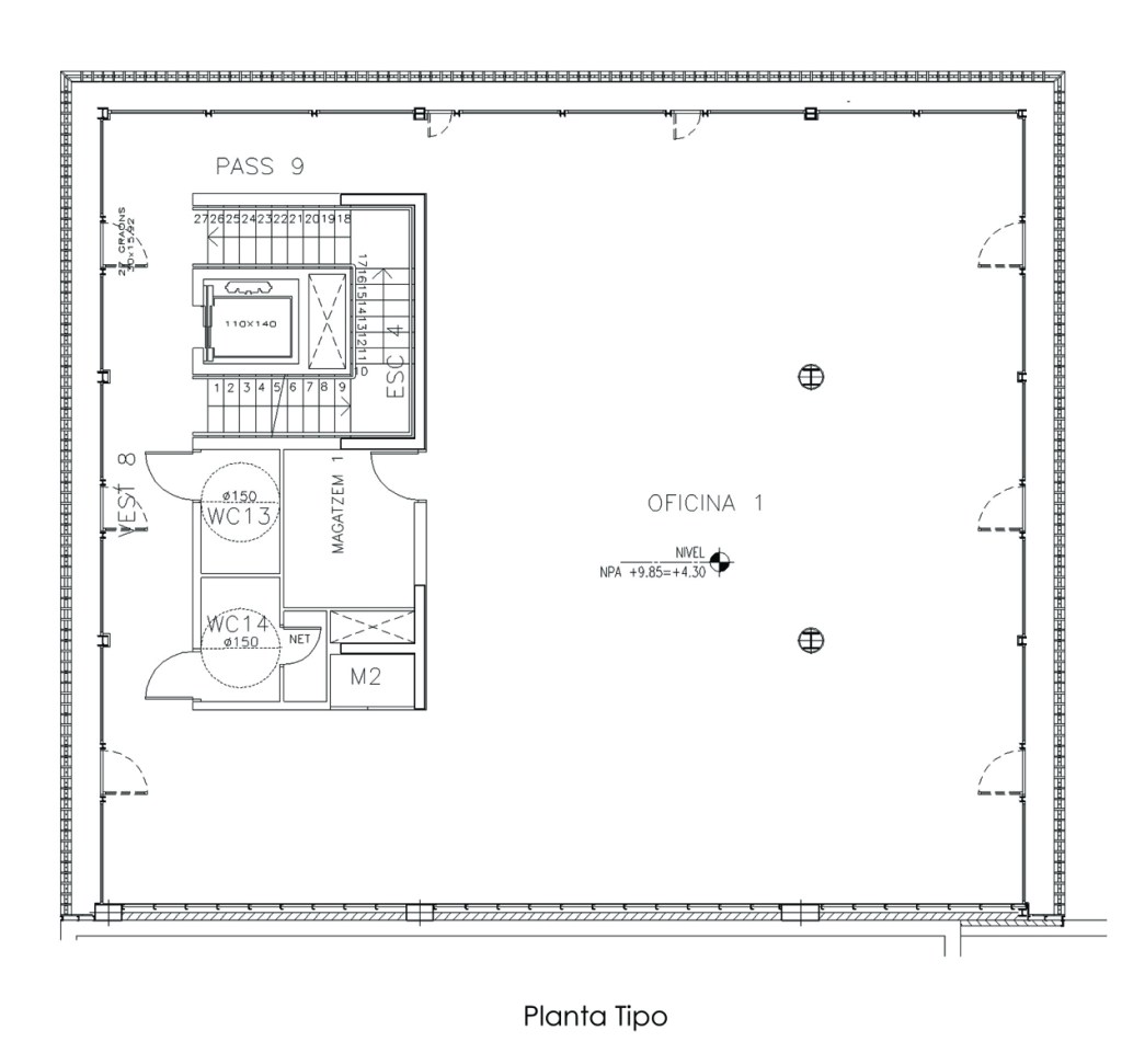
- Escuela de Idiomas EOI en Tarragona, España (proyecto) – Nuevo edificio de oficinas junto a una fábrica del siglo XIX existente, que fue transformada en una escuela de idiomas. Rediseñé los planos de las oficinas y realicé los detalles de la fachada.
Fachada de la calle y renderizado 3D.
Plan principal del edificio de oficinas y detalles de la fachada.
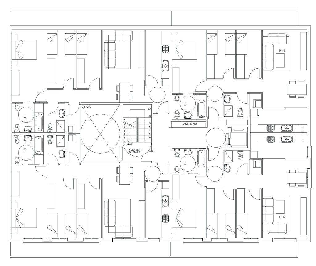
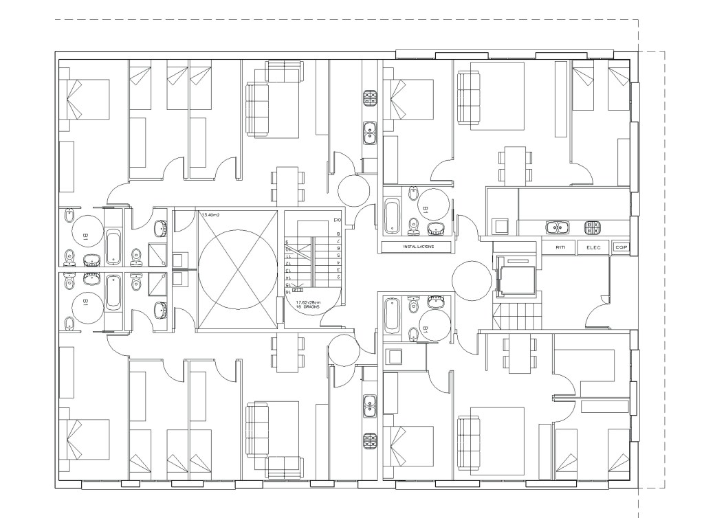
- Edificio de viviendas públicas, Botafoc de Vendrell, España, diseño alternativo. 56 apartamentos, 90 plazas de aparcamiento, 2 tiendas. Diseñé los planos y las fachadas.
Planta tipo y fachadas
- Escuela Pública en Barcelona, España. Hice los renderizados en 3D de Sketchup y los diseños de la fachada.

- Vivienda Pública en Barcelona, España. Diseñé el plano de planta y los planos principales para un concurso de diseño.
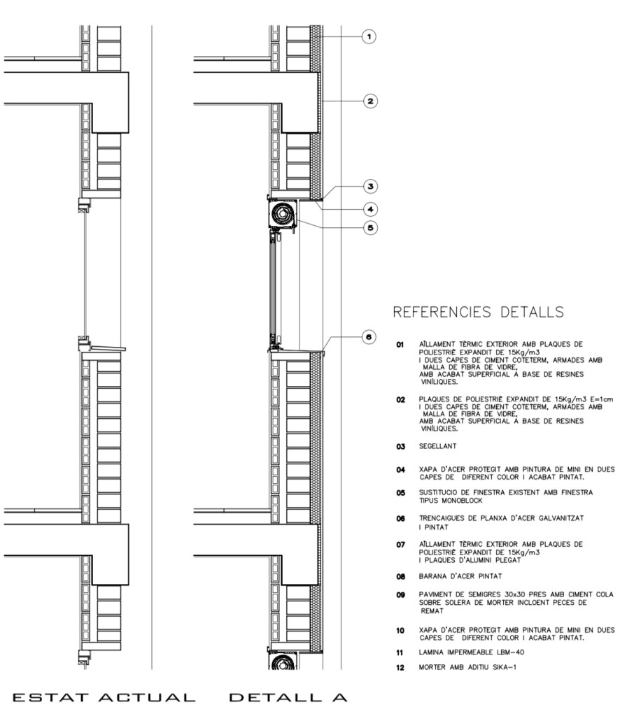
- Concurso de Diseño Urbano: renovación del barrio de Canyelles en Barcelona, rehabilitando las fachadas existentes con nuevos materiales y colores.**
Plan general, y fachada y detalles de uno de los bloques.
foto del estado existente y render del proyecto de uno de los bloques
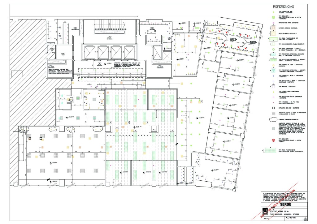
PARA RAC – JMV INGENIEROS CIVILES
Prov. De Bs. As, Argentina. Tel (0115411) 4792-2047. Email: estudioracjmv@fibertel.com.ar
- Ejemplos de planes estructurales de hormigón armado y acero que diseñé en el estudio, utilizando Auto CAD:**
PARA ESTUDIO CZAPLA & ALDANONDO (C&ARQ), ARQs
CAPITAL FEDERAL, BS AS, ARGENTINA. E-MAIL: CYARQ@FIBERTEL.COM.AR
- Ejemplos de planos de distribución de oficinas e instalaciones y detalles del mobiliario de oficina que redacté:**:
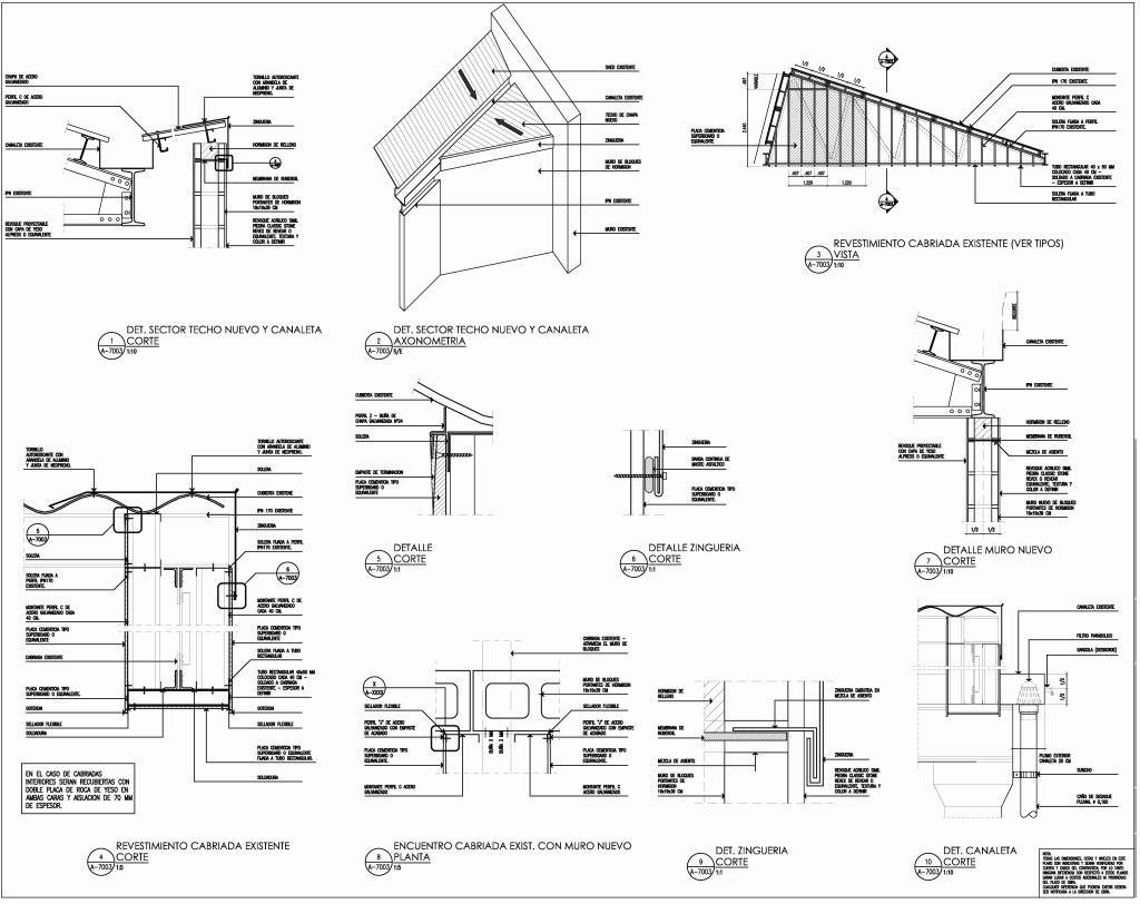
- Transformación de una fábrica en Barracas, Buenos Aires, en lofts y espacios comerciales, C&ARQ en asociación con los arquitectos Horacio Fridman y Arturo Beccar Varela.
Plan de azotea y fachadas
Elaboré los planes y los detalles de construcción.
PARA CARLOS NICOLAU PARES, ARQ
Carrer Escusellers Blancs 3 bis Bajo derechas, Barcelona.
- Planos técnicos de Auto CAD de un espacio comercial de OYSHO y fachadas de una competencia de hotel de 5 estrellas en el Caribe que redacté.
TRABAJOS COMO ARQ INDEPENDIENTE
- Casa familiar en Buenos Aires, junto al arq. Walter Villagra.
Renders en 3D de ideas preliminares y planes de diseño final.
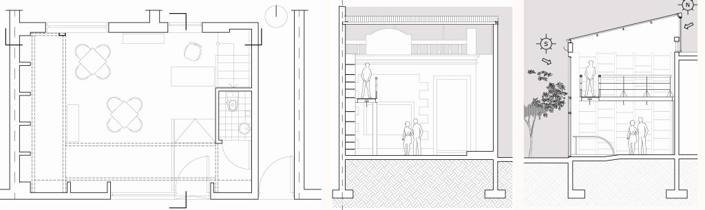
- Agregar una librería a una casa de vivienda existente en Buenos Aires, junto a Pablo Rodríguez Somoza.
Collage de fotos de la casa original y boceto conceptual
Fachada de la calle, plano y secciones del diseño final
fotos del edificio terminado
- Renovando un chalet existente en Buenos Aires.
Renders en 3D de conceptos, planos y foto de la entrada terminada con techo de policarbonato y estructura metálica.

Dibujo conceptual y foto del diseño terminado de la nueva puerta del jardín.
- Competencia de diseño de un bar en la playa. Renderizados en 3D y planos finales.











































